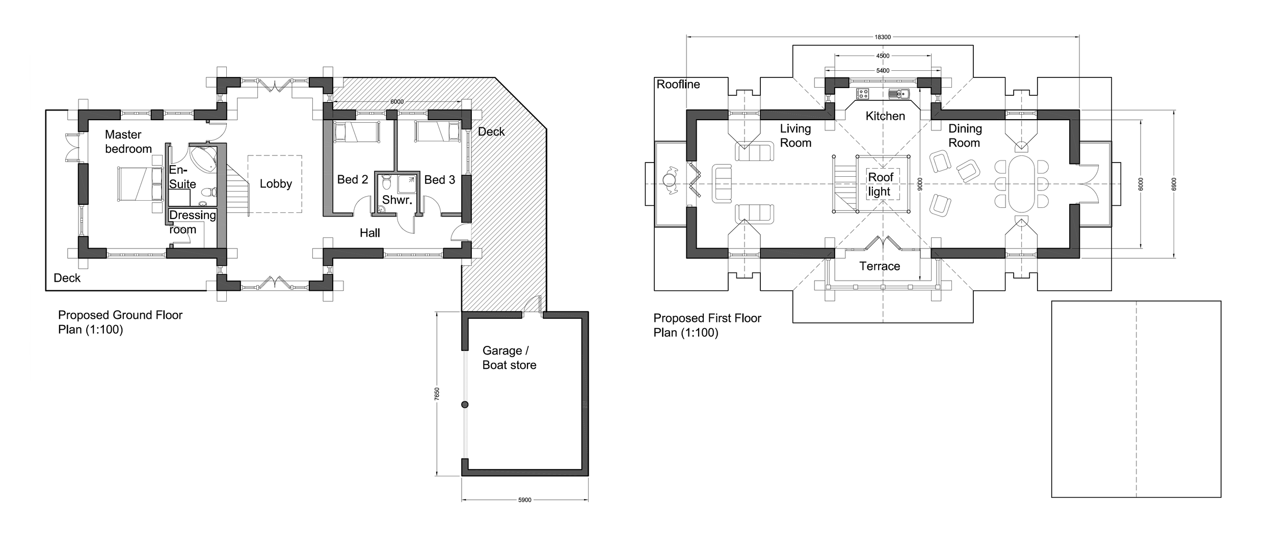
Fir Lodge
Fir Lodge was an education in log building that sparked a desire to automise this labour intensive build process, which led to a meeting of minds with Ballmer Systems. Many years of development followed in pursuit of the perfect robot system. As with many first projects lots of this build was completed the hard way, never skimping on quality and seemingly never choosing the easy option!
The Douglas Fir logs used in Fir Lodge were all felled locally in Norfolk, hand peeled using a garden spade and cleaned with a pressure washer. The logs were not drawknifed or planed as many logs are, retaining their natural shape and beauty. Fir Lodge is available to rent as a holiday let, visit www.firlodgenorfolk.co.uk.
“A really stunning log home that is a joy to spend time in. It’s standing the test of time well and only seems to improve with age.”

